Veropak Ltd makes high-quality, low-maintenance paper case denesters for clients in the UK and Europe. We also ship worldwide to clients based in North America, Australia, Asia, and more. Contact us today to enquire about our products.
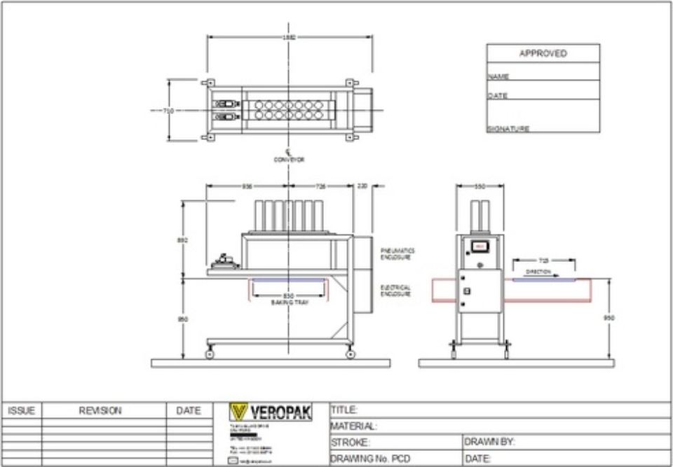
Design overview
Our initial design drawings will provide you with a side, top and front view of the product as it will appear with your specifications incorporated.
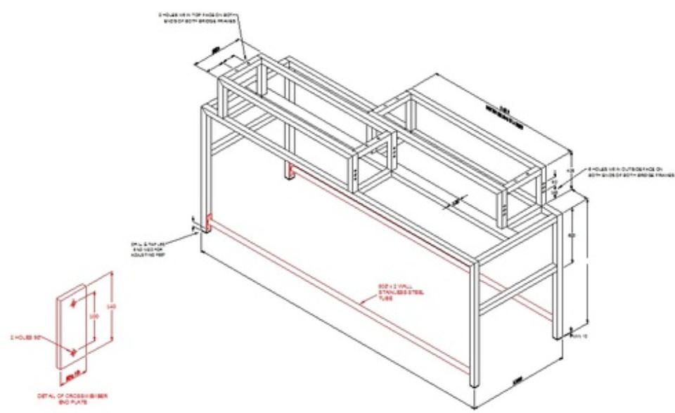
Isometric drawings
Our isometric drawings offer more detail and allow us to incorporate more precise details from your specifications into the final design. The initial isometric drawing will outline the exact size of the machine without any parts included for the benefit of our framework manufacturer.
Integration
If you already have a conveyorised system or will be having one installed, we can design your machine to integrate perfectly into your system. This final stage of design delivers the most detailed drawings, showing how your machine will fit into your current system.
 
  
  
  
  
  
 
